Výstavba Na Kamenci
Zahájení prodeje: červenec 2024
Developerský projekt Na Kamenci se nachází na okraji obce Újezd u Přelouče a nabízí spojení s přírodou, klidem a moderním bydlením. Výhled do zeleně a snadný přístup do města dělá tuto lokalitu ideálním místem pro ty, kteří hledají harmonii mezi venkovským životem a pohodlím města.
Naším cílem je poskytnout Vám nejen dům, ale zajistit i celkový zážitek ze samotného bydlení.
Projekt je rozdělen do tří etap výstavby, přičemž v každé etapě se nabízí tři unikátní parcely, na nichž můžete realizovat své bydlení podle Vašich představ. Nabízíme tři typy domů, všechny ve stylu moderního bungalovu se čtyřmi pokoji a komfortním dispozičním uspořádáním. Váš nový domov můžete dále přizpůsobit svým individuálním potřebám ve spolupráci s naším architektem, který vám pomůže realizovat vaše sny.
Chceme, aby bylo Vaše nové bydlení dosažitelné a bezstarostné. Proto Vám v případě zájmu nabízíme zprostředkování financování, které Vám pomůže zhmotnit Váš sen o vlastním domově.
Energetická úspornost je klíčovou součástí našeho projektu Na Kamenci. Každý dům je vybaven moderními technologiemi, které snižují energetickou náročnost a přispívají k ochraně životního prostředí.
Součástí projektu jsou například tepelná čerpadla, která zajišťují efektivní vytápění a chlazení. Fotovoltaické panely umožňují výrobu vlastní elektřiny z obnovitelných zdrojů. Domy jsou navrženy s důrazem na kvalitní izolační materiály a energeticky úsporná okna, což minimalizuje tepelné ztráty.
Díky těmto opatřením se výrazně snižují provozní náklady na bydlení a zvyšuje se jeho komfort.
Ujezd u Přelouče se nachází v bezprostřední blízkosti Chlumce nad Cidlinou a Přelouče, což zajišťuje výbornou dostupnost k veškerým potřebným službám a zařízením. Dálnice je vzdálená pouze 5 km, což zajištuje snadné spojení s hlavními městy regionu. Praha je vzdálená pouze 60 km, Pardubice 22 km a Hradec Králové 28 km.
V samotné obci najdete veškeré potřebné služby jako restaurace, potraviny, knihovnu, posilovnu, sportovní a kulturní areál. Základní škola se nachází ve vzdálenosti 7 km a mateřská školka pouze 5 km od projektu.
Naše nabídka zahrnuje tři typy domů s různými rozměry zastavěné plochy, které splňují nejnovější standardy moderního bydlení.
Nechte se okouzlit krásou a pohodou, které nabízí projekt Na Kamenci.
Každý dům je pečlivě navržen s důrazem na kvalitu, pohodlí a estetiku, aby vyhovoval nej náročnějším požadavkům našich klientů.
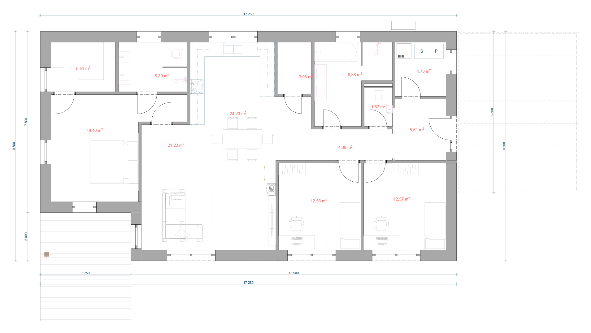
Dům je navržen s hlavní ložnicí a dalšími dvěma pokoji, které mohou sloužit jako dětské pokoje, kancelář nebo pokoj pro hosty. Otevřená kuchyň spojená s prostorným obývacím pokojem vytváří ideální prostor pro rodinné setkávání a společné aktivity. K dispozici jsou také dvě koupelny, které usnadňují denní rutinu a zajišťují pohodlné bydlení.
Váš nový domov můžete dále přizpůsobit svým individuálním potřebám ve spolupráci s naším architektem, který vám pomůže realizovat vaše představy.
Každý dům je vybaven moderními technologiemi, které snižují energetickou náročnost a přispívají k ochraně životního prostředí. K dispozici jsou například tepelná čerpadla, která zajišťují efektivní vytápění a chlazení, a fotovoltaické panely, které umožňují výrobu vlastní elektřiny z obnovitelných zdrojů. Domy jsou navrženy s důrazem na kvalitní izolaci a energeticky úsporná okna, což mini- malizuje tepelné ztráty.
Chceme, aby bylo vaše nové bydlení dosažitelné a bezstarostné. Proto vám nabízíme zprostřed- kování financování, které vám pomohou uskutečnit váš sen o vlastním domově.
Chcete o projektu Na Kamenci vědět více?
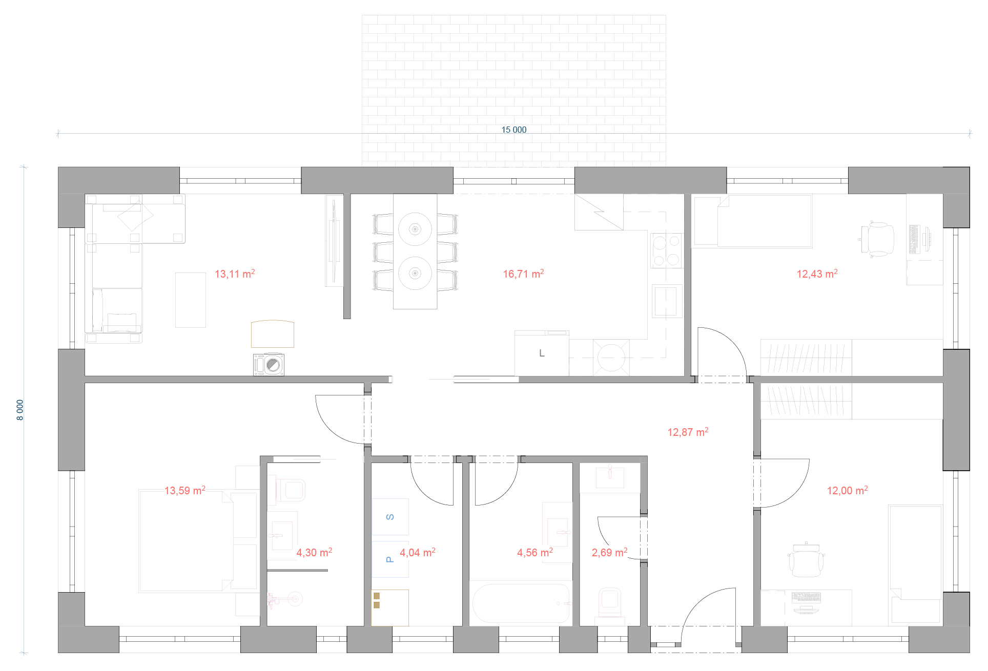
Dům je navržen s hlavní ložnicí a dalšími dvěma pokoji, které mohou sloužit jako dětské pokoje, kancelář nebo pokoj pro hosty. Otevřená kuchyň spojená s prostorným obývacím pokojem vytváří ideální prostor pro rodinné setkávání a společné aktivity. K dispozici jsou také dvě koupelny, které usnadňují denní rutinu a zajišťují pohodlné bydlení.
Váš nový domov můžete dále přizpůsobit svým individuálním potřebám ve spolupráci s naším architektem, který vám pomůže realizovat vaše představy.
Každý dům je vybaven moderními technologiemi, které snižují energetickou náročnost a přispívají k ochraně životního prostředí. K dispozici jsou například tepelná čerpadla, která zajišťují efektivní vytápění a chlazení, a fotovoltaické panely, které umožňují výrobu vlastní elektřiny z obnovitelných zdrojů. Domy jsou navrženy s důrazem na kvalitní izolaci a energeticky úsporná okna, což mini- malizuje tepelné ztráty.
Chceme, aby bylo vaše nové bydlení dosažitelné a bezstarostné. Proto vám nabízíme zprostřed- kování financování, které vám pomohou uskutečnit váš sen o vlastním domově.
Chcete o projektu Na Kamenci vědět více?
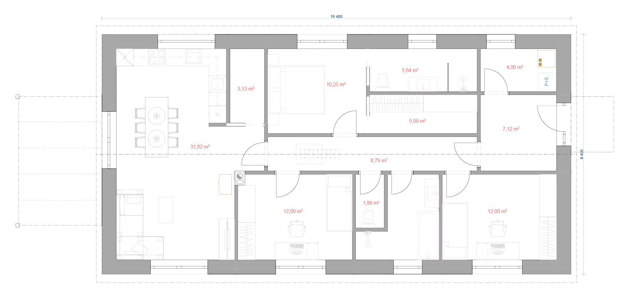
Dům je navržen s hlavní ložnicí a dalšími dvěma pokoji, které mohou sloužit jako dětské pokoje, kancelář nebo pokoj pro hosty. Otevřená kuchyň spojená s prostorným obývacím pokojem vytváří ideální prostor pro rodinné setkávání a společné aktivity. K dispozici jsou také dvě koupelny, které usnadňují denní rutinu a zajišťují pohodlné bydlení.
Váš nový domov můžete dále přizpůsobit svým individuálním potřebám ve spolupráci s naším architektem, který vám pomůže realizovat vaše představy.
Každý dům je vybaven moderními technologiemi, které snižují energetickou náročnost a přispívají k ochraně životního prostředí. K dispozici jsou například tepelná čerpadla, která zajišťují efektivní vytápění a chlazení, a fotovoltaické panely, které umožňují výrobu vlastní elektřiny z obnovitelných zdrojů. Domy jsou navrženy s důrazem na kvalitní izolaci a energeticky úsporná okna, což mini- malizuje tepelné ztráty.
Chceme, aby bylo vaše nové bydlení dosažitelné a bezstarostné. Proto vám nabízíme zprostřed- kování financování, které vám pomohou uskutečnit váš sen o vlastním domově.
Chcete o projektu Na Kamenci vědět více?
Chtěli by jste si upravit dům podle svého?
E & M Trade s.r.o.
Generální dodavatel stavebRealizaci výstavby projektu Na Kamenci má na starosti generální dodavatel staveb, stavební společnost E & M Trade s.r.o.
Společnost působící ve všech segmentech stavebního průmyslu. Zajišťuje veškeré náležitosti od zpracování projektové dokumentace všech stupňů, přes vyřízení stavebního povolení a kolaudaci, až po ucelenou dodávku stavebních prací. E & M Trade s.r.o. se zabývá stavbou a rekonstrukcí obytných domů, komerčních prostor, administrativních budov či průmyslových objektů.

